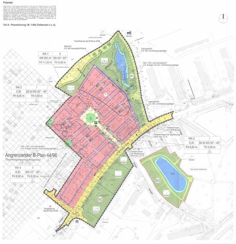
71/08 Wohnpark Erwin-Fischer-Straße
Bebauungsplan
Aufstellung: 29.05.2008 | Bekanntmachung: 21.06.2008 | Satzung: 26.06.2014 | Rechtskraft: 21.09.2014
Plandokumente
Quelle: Abt. Planung
Aufstellung: 29.05.2008 | Bekanntmachung: 21.06.2008 | Satzung: 26.06.2014 | Rechtskraft: 21.09.2014
Quelle: Abt. Planung