6/90 Gewerbegebiet Dammhusen
6/90 Gewerbegebiet Dammhusen
Bebauungsplan
Aufstellung: 28.02.1991 | Satzung: 29.04.1999 | Rechtskraft: 09.04.2000
Plandokumente
Quelle: Abt. Planung
6/90, 1. Änderung
Bebauungsplan "Gewerbegebiet Dammhusen"
Aufstellung: 24.11.2005 | Bekanntmachung: 06.12.2005 | Satzung: 26.10.2006 | Rechtskraft: 24.12.2006
Plandokumente
Quelle: Abt. Planung
6/90, 2. Änderung
Bebauungsplan "Gewerbegebiet Dammhusen"
Aufstellung: 26.11.2015 | Bekanntmachung: 12.12.2015 | Satzung: 31.03.2016 | Rechtskraft: 24.04.2016
Plandokumente
Quelle: Abt. Planung
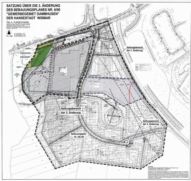
6/90, 3. Änderung
Bebauungsplan "Gewerbegebiet Dammhusen"
Aufstellung: 23.02.2017 | Bekanntmachung: 25.03.2017 | Satzung: 28.06.2018 | Rechtskraft: 25.08.2018
Plandokumente
-
B-Plan 6/90, 3. Änderung: Datei in neuem Fenster öffnen
Datum:
Copyright: Stadtanzeiger 07/2018
Anzeige
-
-
Quelle: Abt. Planung