54/00 Wohn- und Mischgebiet Lübsche Burg
54/00 Wohn- und Mischgebiet Lübsche Burg
Bebauungsplan
Aufstellung: 27.01.2000 | Bekanntmachung: 05.02.2000 | Satzung: 27.04.2006 | Rechtskraft: 14.05.2006
Plandokumente
Quelle: Abt. Planung
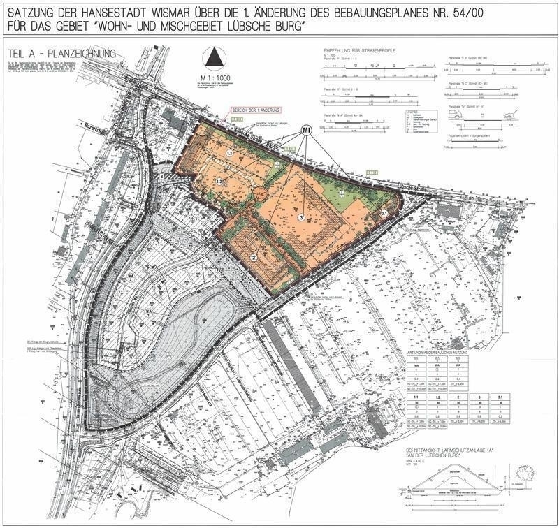
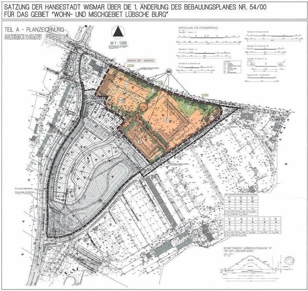
54/00, 1. Änderung
Bebauungsplan
Aufstellung: 25.08.2011 | Bekanntmachung: 24.09.2011 | Satzung: 23.02.2012 | Rechtskraft: 04.03.2012
Plandokumente
Quelle: Abt. Planung